Fréttir

Kynning á tillögu að nýju aðalskipulagi

Kynning á tillögu að nýju aðalskipulagi

Tillaga að nýju aðalskipulagi fyrir sveitarfélagið Ölfus verður til kynningar á bæjarskrifstofu Ölfuss frá frá 1. til 15. desember fyrir meðhöndlun í bæjarstjórn í samræmi við 2. málsgrein 30. greinar skipulagslaga. Einnig verður haldinn opinn kynningarfundur í Versölum, Hafnarbergi 1, Þorlákshöfn,…
Lesa fréttina Kynning á tillögu að nýju aðalskipulagi
Auglýsing um breytingu á aðalskipulagi og nýtt deiliskipulag

Auglýsing um breytingu á aðalskipulagi og nýtt deiliskipulag

Aðal- og deiliskipulagstillaga fyrir Riftún var samþykkt til auglýsingar í samræmi við 31. grein og 1. málsgrein 41. greinar skipulagslaga nr. 123/2010 af bæjarstjórn Ölfuss. Deiliskipulag fyrir Riftún í Ölfusi Deiliskipulagstillagan fjallar um verslun og þjónustu á um 9,3 hektara svæði við Þorlák…
Lesa fréttina Auglýsing um breytingu á aðalskipulagi og nýtt deiliskipulag
Rafmagnslaust verður í Ölfusi, frá Kögunarhól að Selfossi, miðvikudaginn 01.12.2021 frá kl 13:00 til…

Rafmagnslaust verður í Ölfusi, frá Kögunarhól að Selfossi, miðvikudaginn 01.12.2021 frá kl 13:00 til kl 14:00

Rafmagnslaust verður í Ölfusi, frá Kögunarhól að Selfossi, miðvikudaginn 01.12.2021 frá kl 13:00 til kl 14:00 vegna vinnu við háspennukerfi. Nánari upplýsingar veitir Svæðisvakt RARIK Suðurlandi í síma 528 9890 og kort af svæðinu má sjá á www.rarik.is/rof
Lesa fréttina Rafmagnslaust verður í Ölfusi, frá Kögunarhól að Selfossi, miðvikudaginn 01.12.2021 frá kl 13:00 til kl 14:00
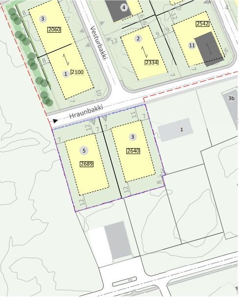
Auglýsing á deiliskipulagstillögum

Auglýsing á deiliskipulagstillögum

Eftirtaldar skipulagstillögur voru samþykktar til auglýsingar í samræmi við 1. málsgrein 41. greinar skipulagslaga nr. 123/2010 á 295. fundi bæjarstjórnar Ölfuss. Tillögurnar eru: Breyting á deiliskipulagi Unu- og Vesturbakki. Efla ehf. leggur fram tillögu að breytingu á deiliskipulaginu „Athafnas…
Lesa fréttina Auglýsing á deiliskipulagstillögum
Lokað fyrir kalda vatnið föstudaginn 26. nóvember nk.

Lokað fyrir kalda vatnið föstudaginn 26. nóvember nk.

Lokað fyrir kalda vatnið
Lesa fréttina Lokað fyrir kalda vatnið föstudaginn 26. nóvember nk.
Aðventudagatal í Ölfusi

Aðventudagatal í Ölfusi

Aðventudagatal í Ölfusi
Lesa fréttina Aðventudagatal í Ölfusi
FRESTAÐ - Samflot í Sundlaug Þorlákshafnar

FRESTAÐ - Samflot í Sundlaug Þorlákshafnar

FRESTAÐ - Samflot í Sundlaug Þorlákshafnar
Lesa fréttina FRESTAÐ - Samflot í Sundlaug Þorlákshafnar
Aðventuhátíð 1. desember nk.

Aðventuhátíð 1. desember nk.

Við fögnum saman aðventunni og eigum saman kvöldstund þar sem verður hægt að klára jólagjafakaupin, njóta veitinga og ævintýranlegrar jólaleiksýningu í Skrúðgarðinum.
Lesa fréttina Aðventuhátíð 1. desember nk.
Gámasvæðið verður lokað laugardaginn 20. nóvember nk.

Gámasvæðið verður lokað laugardaginn 20. nóvember nk.

Gámasvæðið verður lokað laugardaginn 20. nóvember nk. vegna óviðráðanlegra orsaka.
Lesa fréttina Gámasvæðið verður lokað laugardaginn 20. nóvember nk.
Auglýsing um forkynningu á deiliskipulagstillögum

Auglýsing um forkynningu á deiliskipulagstillögum

Eftirtaldar skipulagstillögur verða til forkynningar á bæjarskrifstofu Ölfuss fyrir umfjöllun í bæjarstjórn Ölfuss í samræmi við 3. málsgrein 40. greinar skipulagslaga nr. 123/2010. Tillögurnar eru:   Breyting á deiliskipulagi Unu- og Vesturbakki. Efla ehf. leggur fram tillögu að breytingu á deil…
Lesa fréttina Auglýsing um forkynningu á deiliskipulagstillögum