Grenndarkynning vegna Grímslækjarheiði

Uppfært deiliskipulag
Uppfært deiliskipulag

Á 275. fundi Bæjarstjórnar Ölfuss 30.1.2020 sl., var samþykkt að grenndarkynna óverulega breytingu skipulags í samræmi við 44. gr. skipulagslag nr. 123/2010. Erindið hafið hlotið umræðu og afgreiðslu á 3. fundi Skipulags- og umhverfisnefndar Ölfuss þann 23.1.2020.

Afgreiðsla máls er í takt við 3. mgr. 43 gr. skipulagslaga.

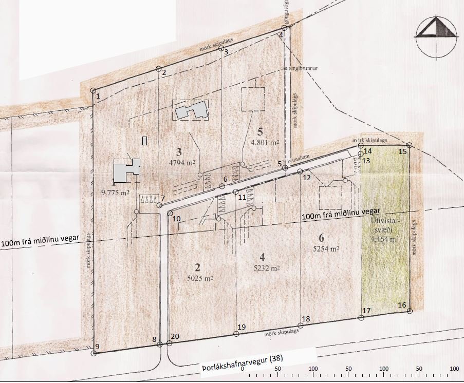
Magnús Gunnarsson sendir inn uppfærðan deiliskipulagsuppdrátt fyrir Grímslækjarheiði en hann á húsið Sögustein í Ölfusi L172269, sem tekur til stærsta hluta skipulagsins. Magnús óskar eftir viðurkenningu á lóðaskiptingu og vegtengingu skv. samþykktu deiliskipulagi frá 1995. Um óverulega breytingu deiliskipulags er að ræða.

Deiliskipulag hefur verið uppfært og lóðir hnitsettar. Skipulagið er 4 ha að stærð og skiptist í 6 lóðir, útivistarsvæði og vegtengingu. Byggingarreitir syðst á landinu færast í 100 m línu frá Þorlákshafnarvegi 38. Nýtingarhlutfall lóða er í samræmi við aðalskipulag Ölfuss 2010-2022. Byggingarskilmálar eru annars óbreyttir.

Meðfylgjandi er uppdráttur. Að lokinni kynningu verður skipulagið skv. skipulagslögum. Þeir sem telja sig eiga hagsmuna að gæta er hér með gefinn kostur á að gera athugasemdir við áformin. Þau hanga til sýnis á bæjarskrifstofum og á heimasíðu. Frestur til að senda athugasemdir er frá 7. febrúar – 13. mars 2020.
Skila skal athugasemdum á bæjarskrifstofur Ölfuss, Hafnarberg 1, eða rafrænt á skipulag@olfus.is, merkt „Sögusteinn“.

Heimilt er að stytta tímabil grenndarkynningar hljótist undirritað samþykki íbúa fyrir áformunum,
skv. 3. mgr., 44. gr. Skipulagslaga nr. 123/2010. Kynningarbréf hljóta íbúar í Klettagljúfri 5, 6 og 9.

Þeir sem hljóta sérstakt kynningarbréf og uppdrátt í pósti eru: Reynir Sveinsson (L172267), Magnús Gunnarsson (L172269), Ólafur Sigurðsson (L172270), Jörgen Eric Guðmundsson og Elías Theódórsson (L195678).
Brynjar Ólafsson (L172271) hefur ekki skráð heimilisfang og getur því ekki fengið bréf.

Verkefnastjóri skipulagsmála

X Loka
Var efnið á síðunni hjálplegt?