Fréttir

Rafíþróttadeildin fékk gull verðlaun

Rafíþróttadeildin fékk gull verðlaun

Rafíþróttadeild Þórs tók þátt í haustmóti NÚ í Valorant og sigruðu með glæsibrag. Leikmenn Þórs eru Guðgeir Þór, Guðmundur Kristján , Viktor Freyr og Þorvaldur Daði sem eru allir í 9. bekk í GÞ. Þeir hafa æft með rafíþróttadeildinni frá byrjun. Þjálfari þeirra er Daníel Máni og hóf hann að þjálfa h…
Lesa fréttina Rafíþróttadeildin fékk gull verðlaun
Laus til umsóknar

Laus til umsóknar

Laus til umsóknar
Lesa fréttina Laus til umsóknar
Syndum - landsátak í sundi í nóvember

Syndum - landsátak í sundi í nóvember

Syndum er heilsu- og hvatningarátak sem er öllum landsmönnum opið. Markmiðið með Syndum er að hvetja almenning til þess að hreyfa sig oftar og meira í sínu daglega lífi og nýta sundið og þær flottu sundlaugar sem er að finna um land allt. Átakið var formlega sett á laggirnar fyrir tveimur árum og he…
Lesa fréttina Syndum - landsátak í sundi í nóvember
Hlekkur á 322.fund bæjarstjórnar Sveitarfélagsins Ölfuss fimmtudaginn 2.nóvember 2023

Hlekkur á 322.fund bæjarstjórnar Sveitarfélagsins Ölfuss fimmtudaginn 2.nóvember 2023

Hlekkur á 322.fund bæjarstjórnar Ölfuss
Lesa fréttina Hlekkur á 322.fund bæjarstjórnar Sveitarfélagsins Ölfuss fimmtudaginn 2.nóvember 2023
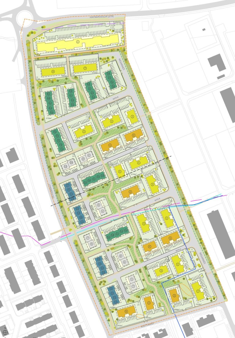
Auglýsing um forkynningu á deiliskipulagstillögu

Auglýsing um forkynningu á deiliskipulagstillögu

Eftirtalin skipulagstillaga verður til forkynningar á bæjarskrifstofunni, fyrir umfjöllun í bæjarstjórn Ölfuss þann 2. nóvember, í samræmi við 3. málsgrein 40. greinar skipulagslaga nr. 123/2010. Hún hafði áður verið samþykkt til auglýsingar í skipulags- og umhverfisnefnd Ölfuss.   Deiliskipulag í…
Lesa fréttina Auglýsing um forkynningu á deiliskipulagstillögu
Skrifstofa háskóla-, iðnaðar- og nýsköpunarráðherra í Ölfus Cluster 30.október 2023 - opinn viðtalst…

Skrifstofa háskóla-, iðnaðar- og nýsköpunarráðherra í Ölfus Cluster 30.október 2023 - opinn viðtalstími

Áslaug Arna Sigurbjörnsdóttir, háskóla-, iðnaðar- og nýsköpunarráðherra, verður staðsett með skrifstofu sína í Ölfus Cluster, Hafnarbergi 1 í Þorlákshöfn mánudaginn 30. október nk. og verður með opinn viðtalstíma 10:30-11:30. Áslaug Arna  hefur frá stofnun ráðuneytisins staðsett skrifstofu sína v…
Lesa fréttina Skrifstofa háskóla-, iðnaðar- og nýsköpunarráðherra í Ölfus Cluster 30.október 2023 - opinn viðtalstími
Auglýsing um forkynningu á deiliskipulagstillögum

Auglýsing um forkynningu á deiliskipulagstillögum

  Eftirtaldar skipulagstillögur verða til forkynningar á bæjarskrifstofunni, fyrir umfjöllun í bæjarstjórn Ölfuss þann 2. nóvember, í samræmi við 3. málsgrein 40. greinar skipulagslaga nr. 123/2010. Tillögurnar hafa verði samþykktar til auglýsingar í skipulags- og umhverfisnefnd Ölfuss.   Deilisk…
Lesa fréttina Auglýsing um forkynningu á deiliskipulagstillögum
Húsnæðissamvinnufélagið Elliði auglýsir búseturétt á Mánabraut 4

Húsnæðissamvinnufélagið Elliði auglýsir búseturétt á Mánabraut 4

Til sölu er búseturéttur í 2ja svefnherbergja íbúð í parhúsi. Í heildina er eignin 122,5 fm. og þar af bílskúr 28,6 fm. Húsið var byggt árið 2007 og er staðsett í rólegum og notalegum byggðakjarna eldri borgara í Þorlákshöfn. Búseturétturinn kostar 5.000.000 kr. og mánaðargjöldin eru  kr. 188.191 o…
Lesa fréttina Húsnæðissamvinnufélagið Elliði auglýsir búseturétt á Mánabraut 4
Laus til umsóknar

Laus til umsóknar

Sveitarfélagið Ölfus auglýsir lausa til umsóknar lóðina Selvogsbraut 8. Lóðinni verður úthlutað til reksturs matvöruverslunar og eftir úthlutun þarf lóðahafi að láta vinna deiliskipulag fyrir lóðina og nánasta umhverfi í samráði við sveitarfélagið í samræmi við afgreiðslu Skipulags- og umhverfisnefn…
Lesa fréttina Laus til umsóknar
Sveitarfélagið Ölfus hlýtur viðurkenningu Jafnvægisvogarinnar 2023

Sveitarfélagið Ölfus hlýtur viðurkenningu Jafnvægisvogarinnar 2023

Sveitarfélagið Ölfus er meðal þeirra stofnana, fyrirtækja og sveitarfélaga sem hljóta viðurkenningu Jafnvægisvogarinnar, hreyfiaflsverkefnis Félags kvenna í atvinnulífinu (FKA), í ár en verkefnið snýst um að jafna hlut kynjanna í stjórnun fyrirtækja og stofnana. Sandra Dís Hafþórsdóttir sviðsstjóri …
Lesa fréttina Sveitarfélagið Ölfus hlýtur viðurkenningu Jafnvægisvogarinnar 2023