Auglýsing um deiliskipulag

Eftirtaldar skipulagstillögur voru samþykktar til auglýsingar af bæjarstjórn Ölfuss þann 5. október og 2. nóvember, í samræmi við 1. málsgrein 41. greinar skipulagslaga nr. 123/2010. Tillögurnar höfðu áður verði samþykktar til auglýsingar í skipulags- og umhverfisnefnd Ölfuss.

 

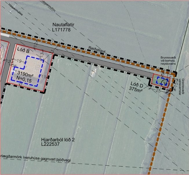
Breyting á deiliskipulaginu Hjarðarból lóðir 1 og 2

Bætt er við lóð fyrir dæluhús við borholu settir byggingarskilmálar fyrir það. Einnig er skipulagsmörkum breytt lítillega svo lóðin verði innan skipulagssvæðisins.

Skipulagið er fyrir lóðir sem skráðar eru sem Hjarðarból lóðir eitt og tvö en á Skipulagsvefsjá er það kallað "Hjarðarból svæði 3 og 4"

Hjarðarból lóðir 1 og 2 - Deiliskipulagsbreyting

 

Deiliskipulagstillaga í landi Eimu í Selvogi

Tillagan markar lóðir fyrir tvö íbúðarhús og þrjú frístundahús í samræmi við heimildir aðalskipulags fyrir landbúnaðarsvæði. Skipulagshöfundurinn hefur leitast við að húsin verði "stakstæð" sem er í samræmi við byggðarmynstrið í Selvogi.

Eima í Selvogi - Deiliskipulagstillaga

 

Deiliskipulagstillaga fyrir lóðina Hafnarsandur 2 - spennistöð

Skipulagið fjallar um fyrir spennistöðvarlóðina Hafnarsandur 2 sem er rétt vestan við Þorlákshöfn. Á lóðinni stendur spennistöð í dag og er skilgreindur byggingarreitur og settir skilmálar fyrir viðbyggingu vegna aukinna flutning á raforku sem fyrirhuguð er til fiskeldistöðva First Water og Geo Salmo. Aðalskipulagsbreyting vegna jarðstrengja frá spennistöðinni að fiskeldisstöðvunum er í auglýsingaferli um þessar mundir.

Hafnarsandur 2 deiliskipulagstillaga

 

Deiliskipulag íbúðar- og frístundalóða ofan vegar í Riftúni

Skilgreint er frístundasvæði með 9 frístundalóðum á reit sem er í landinu Riftún og er í aðalskipulagi skilgreindur sem reitur F7. Einnig er skilgreindar lóðir og byggingarreitir fyrir 3 ný íbúðarhús í samræmi við heimildir aðalskipulags um uppbygginga á landbúnaðarlandi. Þar sem tvö íbúðarhús eru fyrir á svæðinu verða þar 5 íbúðarhús auk þeirra 9 frístundalóða sem skipulagið heimilar.

Riftún ofan vegar deiliskipulagstillaga

 

Tillögurnar verða til sýnis á bæjarskrifstofu Ölfuss, Hafnarbergi 1, Þorlákshöfn dagana 9. nóvember til 22. desember 2023. Hægt er að senda ábendingar eða athugasemdir á netfangið skipulag@olfus.is fyrir lok vinnudags þann 22. desember 2023.

 

 

Gunnlaugur Jónasson, skipulagsfulltrúi

X Loka
Var efnið á síðunni hjálplegt?