Auglýsing um skipulag

Tillaga að deiliskipulagi fyrir lóðina Lindarbæ landnúmer 171766

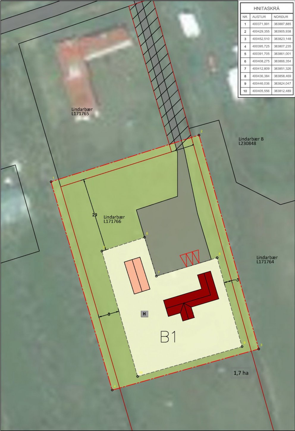
Bæjarstjórn Ölfuss samþykkti þann 26. janúar deiliskipulagstillögu fyrir lóðina Lindarbær, landnúmer 171766 til auglýsingar í samræmi við 1. málsgrein 41. greinar skipulagslaga nr. 123/2010. Tillagan hefur verið auglýst áður en er nú auglýst aftur þar sem hún nýtir heimildir nýs aðalskipulags til uppbyggingar.

Tillagan markar og setur skilmála fyrir viðbyggingu við núverandi íbúðarhús, stakstæðan eða sambyggðan bílskúr og skilgreinir lóð umhverfis húsið/húsin.

Lindarbær 171766 deiliskipulagstillaga

Tillagan verður til sýnis á bæjarskrifstofunni, Hafnarbergi 1, dagana 9. febrúar til 23. mars 2023. Hægt er að senda ábendingar eða athugasemdir á netfangið skipulag@olfus.is fyrir lok vinnudags þann 23. mars 2023 eða með bréfpósti á skipulagsfulltrúa, bæjarskrifstofu Ölfuss, Hafnarbergi 1, 815 Þorlákshöfn.

Gunnlaugur Jónasson, skipulagsfulltrúi

X Loka
Var efnið á síðunni hjálplegt?